top of page



BUNGALOV 92
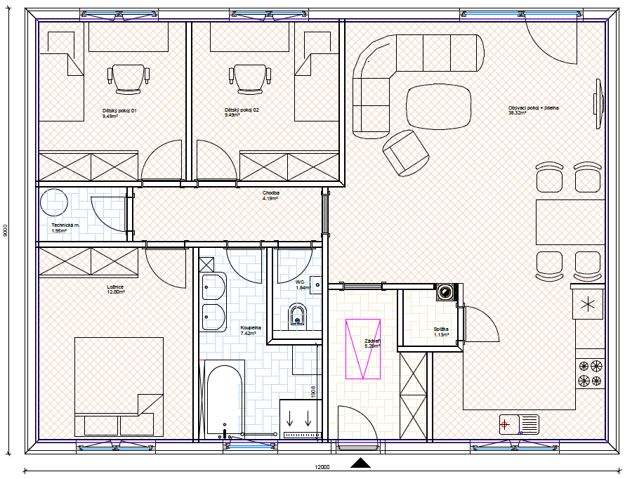
Rodinný dům je určený pro menší až středně velkou rodinu. Svojí architekturou patří mezi klasické domy. Všechny místnosti jsou přístupné z centrální chodby. Denní část domu je umístěna v pravé části domu. Noční část domu je osazena do levé části domu. Dům má samostatnou technickou místnost. Obývací pokoj, kuchyně a jídelna tvoří jeden společný obytný prostor. Z obývacího pokoje je přístup na terasu.
Dispozice 4+kk
Zastavěná plocha 108 m²
Užitková plocha 92 m²
Výška hřebene 5,4 m
Sklon střechy 25 °
Cena domu na klíč
3 555 000 Kč vč. 12% DPH
Vzhledem k velmi rychle se měnícím cenám stavebních materiálů na trhu je nutné si cenu vždy vyžádat individuálně. Uvedené ceny jsou orientační.

bottom of page













